顆粒散裝機
發布時間:2024-6-7 15:58:04 閱讀:996 次

一、概述:
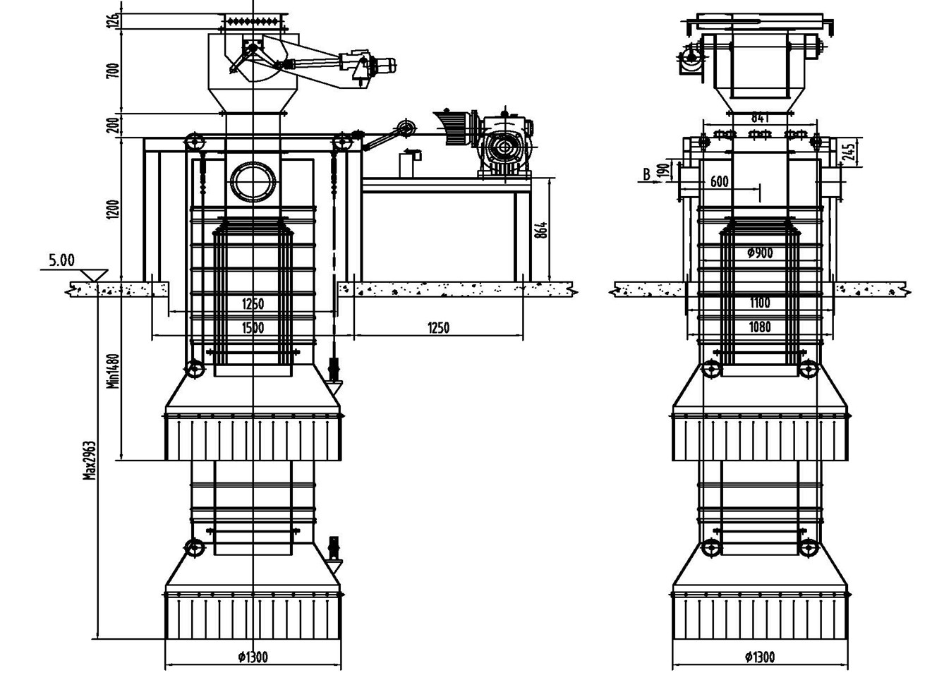
顆粒散裝機是從庫內將熟料、骨料(≤50mm) 等顆粒狀物料自動輸送到散裝車船的設備。主要由手動棒閥,電動扇形閥,卷揚裝置,伸縮卸料裝置、收塵軟管,電容式限位開關,電控系統等部分組成。用戶也可選用庫側熟料散裝設備
二、工作原理及特點
當運輸工具進入裝料位置后,打開棒閥相應的棒條數量。按住控制柜的“下降鈕”,下料頭到位后會自動斷開升降電機電源,按“裝車鈕”進入卸料狀態,輔助配套設備會相應開始工作,卸料產生的灰塵通過進料斗,由伸縮收塵軟管進入收塵器凈化,當下料頭的物料裝滿時,下料頭邊上升邊報警,上升距離要在裝料前設置,若上升距1 米,則將時間斷電器的時間調為T=1/v。在上升過程中裝料始終在進行,當下料頭滿時,再重復上述動作,到達料滿位置后,按停車鈕,關閉扇形閥下料停止工作。停車后可按上升按鈕讓下料斗離開物料一定距離,確保運輸工具的移位,再對準第二個卸料工位。直到整個料倉裝滿為止。
三、示意圖
